Project Updates
Scheduled for July 15, 2025, City Council Meeting for Approval Consideration
Planning Commission Agenda Packet – June 24, 2025
Planning Commission Approval: August 5th, 20255
Planning Commission Agenda Packet – June 24, 2025
Planning Commission Approval: August 5th, 20255
Related Documents
- Resolution 2025-087 (Available on the Public Records Portal)
- Ordinance 2025-007 (Available on the Public Records Portal)
Environmental Documents
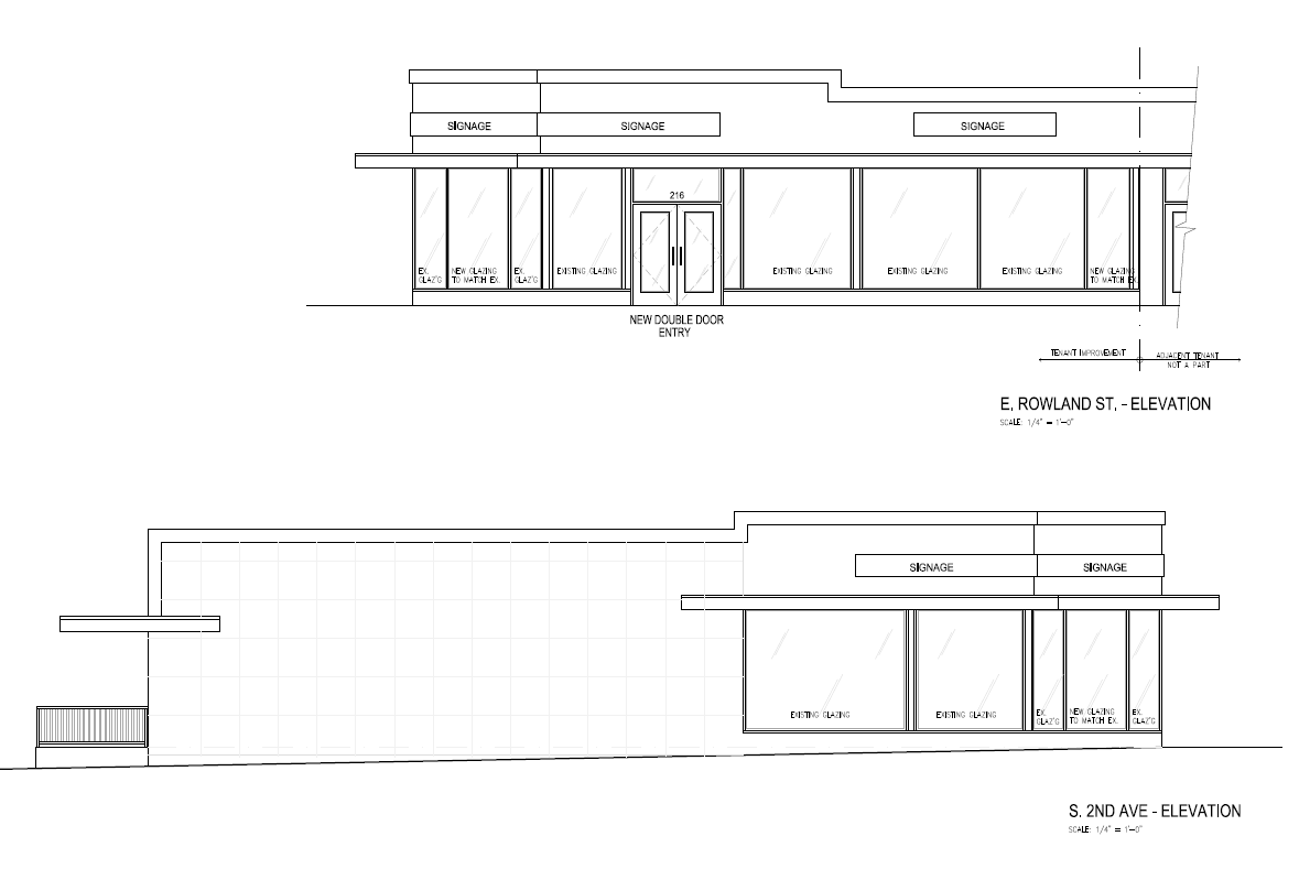
Project Description
Tenant Improvement for a Cannabis Retail within the Town Center Specific Plan
Location:
216 E Rowland St
APN:
8451-001-019
Applicants:
RILANO
Property Owner:
RILANO
Staff Contact:
Eduardo Lomeli
rick@rilanoinc.com
rick@rilanoinc.com